TÝN NAD VLTAVOU - RODINNÝ DŮM U VLTAVY
- UMÍSTĚNÍ PŘÍMO U VLTAVY
- RD SE ZAHRADOU, STODOLOU A GARÁŽÍ
- STÁVAJÍCÍ DISPOZICE RD 4+1
- DOBRÝ, PRŮMĚRNĚ UDRŽOVANÝ STAV
6.120.000,- Kč
REZERVOVÁNO
- UMÍSTĚNÍ PŘÍMO U VLTAVY
- RD SE ZAHRADOU, STODOLOU A GARÁŽÍ
- STÁVAJÍCÍ DISPOZICE RD 4+1
- DOBRÝ, PRŮMĚRNĚ UDRŽOVANÝ STAV
6.120.000,- Kč
REZERVOVÁNO
Dovoluji si Vám exkluzivně nabídnout koupi rodinného domu se zahradou, stodolou a garáží přímo u řeky Vltavy v Týně nad Vltavou. Nabízené nemovitosti jsou situovány v tradiční zástavbě podél místní komunikace – ulice Přední Podskalí, s navazujícím pozemkem směrem k řece Vltavě. Objekt je evidován jako rodinný dům č. p. 466 a je součástí pozemku parc. č. st. 832 – zastavěná plocha a nádvoří o výměře 346 m². Na stavební parcelu navazuje parc. č. 214/4 – zahrada o výměře 866 m². Celková výměra pozemků činí 1 212 m².
Ze stavebního hlediska se jedná o dvoupodlažní (druhým podlažím je půdní vestavba), částečně podsklepený objekt k bydlení o dispozici 4+1 s hospodářským a technickým zázemím – stodolou s vestavěnou zděnou garáží.
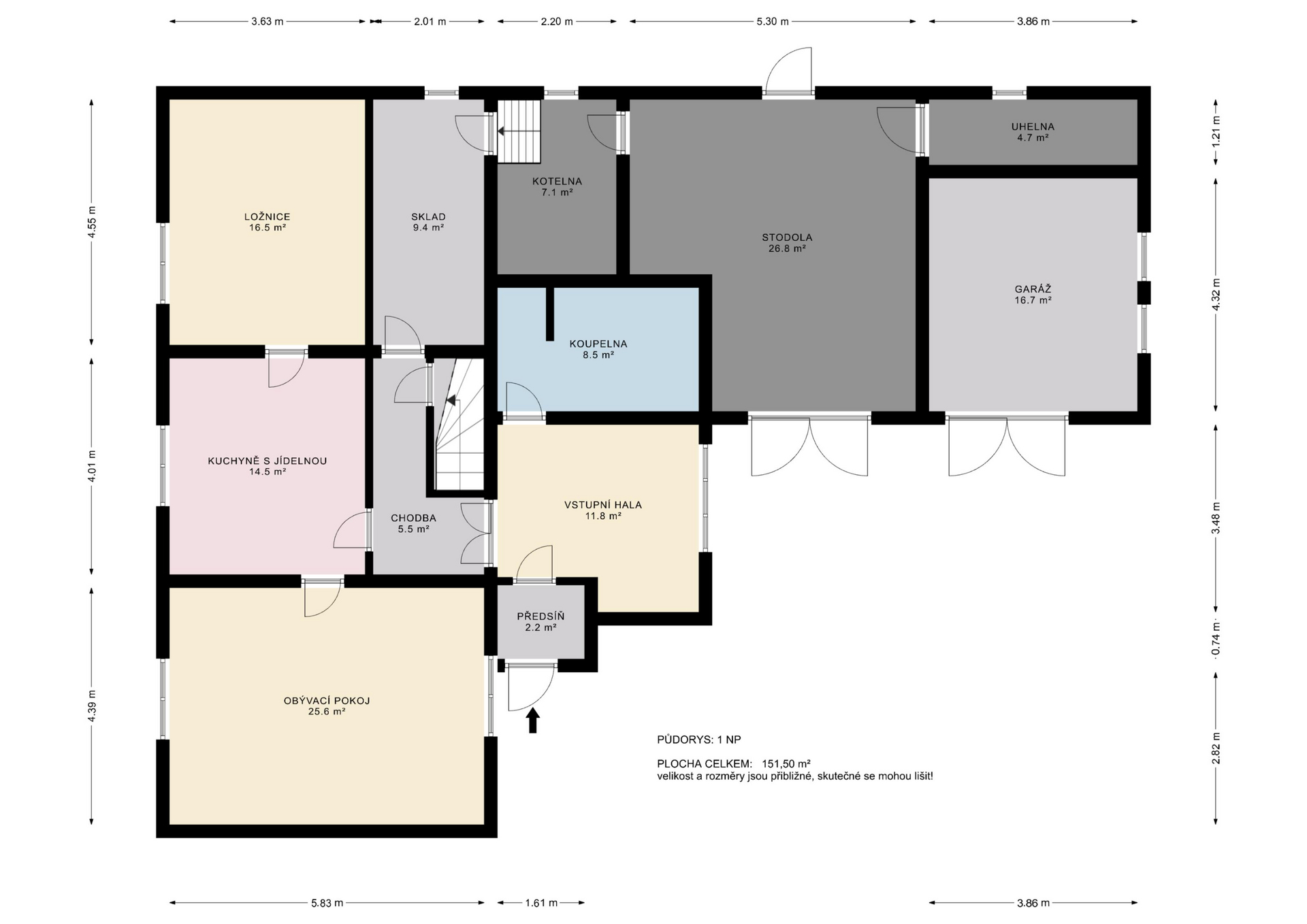
Přízemí domu je funkčně rozděleno na část obytnou a část hospodářskou. Obytnou část tvoří obývací pokoj (5,83 m x 4,39 m = 25,6 m²), kuchyně s jídelnou (3,63 m x 4,01 m = 14,5 m²), ložnice (3,63 m x 4,55 m = 16,5 m²), koupelna (3,40 m x 2,50 m = 8,5 m²), vstupní hala (3,20 m x 3,70 m = 11,8 m²), chodba (2,20 m x 2,50 m = 5,5 m²) a předsíň (1,60 m x 1,40 m = 2,2 m²). Celková orientační plocha obytné části přízemí činí přibližně 85 m². Na obytnou část navazuje technické a hospodářské zázemí tvořené prostorem skladu (2,01 m x 4,70 m = 9,4 m²), kotelnou (2,20 m x 3,20 m = 7,1 m²), stodolou (5,30 m x 5,05 m = 26,8 m²), garáží (3,86 m x 4,32 m = 16,7 m²) a uhelnou (3,86 m x 1,21 m = 4,7 m²). Celková orientační plocha hospodářské a technické části přízemí činí přibližně 65 m². Celková orientační plocha přízemí je přibližně 151,5 m², přičemž výměry jsou orientační a skutečné rozměry se mohou mírně lišit.
Podkroví domu tvoří půdní vestavba se dvěma pokoji a samostatným nevyužívaným půdním prostorem. Dispozičně zahrnuje dvě ložnice (5,48 m x 3,81 m = 20,9 m² a 3,40 m x 3,71 m = 12,7 m²), chodbu (2,00 m x 3,55 m = 7,1 m²) a půdu – nevyužívaný prostor (5,48 m x 4,37 m = 23,9 m²). Celková orientační plocha podkroví činí přibližně 64,6 m², z toho plocha pokojů a chodby přibližně 41 m² a samostatný půdní prostor 23,9 m². Případné další obytné využití půdy bude vyžadovat stavebně-technické posouzení. Součástí domu je sklepní prostor (25,2 m2) tvořený jednou místností.
Dům je napojen na dodávku elektrické energie, vodou je zásobován z obecního vodovodu, odkanalizován do veřejné kanalizace. Vytápění je teplovodním ústředním vytápěním (radiátory) napojeným na kotel na tuhá paliva. Teplá voda je ohřívána v elektrickém bojleru. Technický stav odpovídá dlouhodobě užívanému rodinnému domu se smíšeným stavem konstrukcí a povrchů. Část prostor je v původním technickém provedení, část prošla dílčími úpravami. Objekt je v dobrém, průměrně udržovaném stavu, noví majitelé by měli počítat alespoň s částečnou rekonstrukcí.
Dům se nachází přímo na pravém břehu řeky Vltavy, v části Přední Podskalí, která je přirozenou součástí městské zástavby Týna nad Vltavou. Poloha nabízí otevřený kontakt s řekou a docházkovou vzdálenost do centra města. Týn nad Vltavou disponuje kompletní základní občanskou vybaveností – mateřskými a základními školami, střední školou, zdravotním střediskem, obchody, službami i sportovním a kulturním zázemím. České Budějovice jsou vzdáleny přibližně 35 km, Písek cca 30 km a Tábor přibližně 45 km, což umožňuje rozumnou dojezdovou dostupnost za prací i službami při zachování bydlení mimo větší městské aglomerace. Lokalita přímo u řeky může přirozeně vyvolávat otázky ohledně povodní. Oblast byla zasažena mimořádnou povodní v roce 2002, která byla součástí rozsáhlé události na celém toku Vltavy. Následně došlo k úpravám vodohospodářských opatření a řízení vodních děl, která dnes výrazně snižují riziko opakování obdobné situace. Pro konkrétní posouzení je vždy možné vycházet z oficiálních záplavových map a údajů Povodí Vltavy.
Vlastnická práva k nabízeným nemovitostem nejsou nikým a ničím omezena, k předání může dojít prakticky okamžitě. PENB je v současné době v přípravě, pro potřeby inzerce uvádíme třídu G, předpoklad je D – E.
Pro detailní seznámení s dispozicí a skutečným stavem nemovitosti je k dispozici virtuální prohlídka formou 3D skenu domu, která umožňuje projít jednotlivé místnosti včetně hospodářských částí a získat reálnou představu o prostorových souvislostech ještě před osobní prohlídkou.










Jmenuji se Ivan Horňák, jsem realitní makléř a majitel realitní kanceláře REALITY HORŇÁK. Specializuji se na prodej objektů k bydlení a rekreaci zejména na jihu Čech, ale úspěšně jsem prodal desítky nemovitostí i v Praze na Vysočině a na Plzeňsku.